Laboratorio de soluciones materiales donde la experimentación se vuelve lenguaje de diseño

 

Casa Rawson

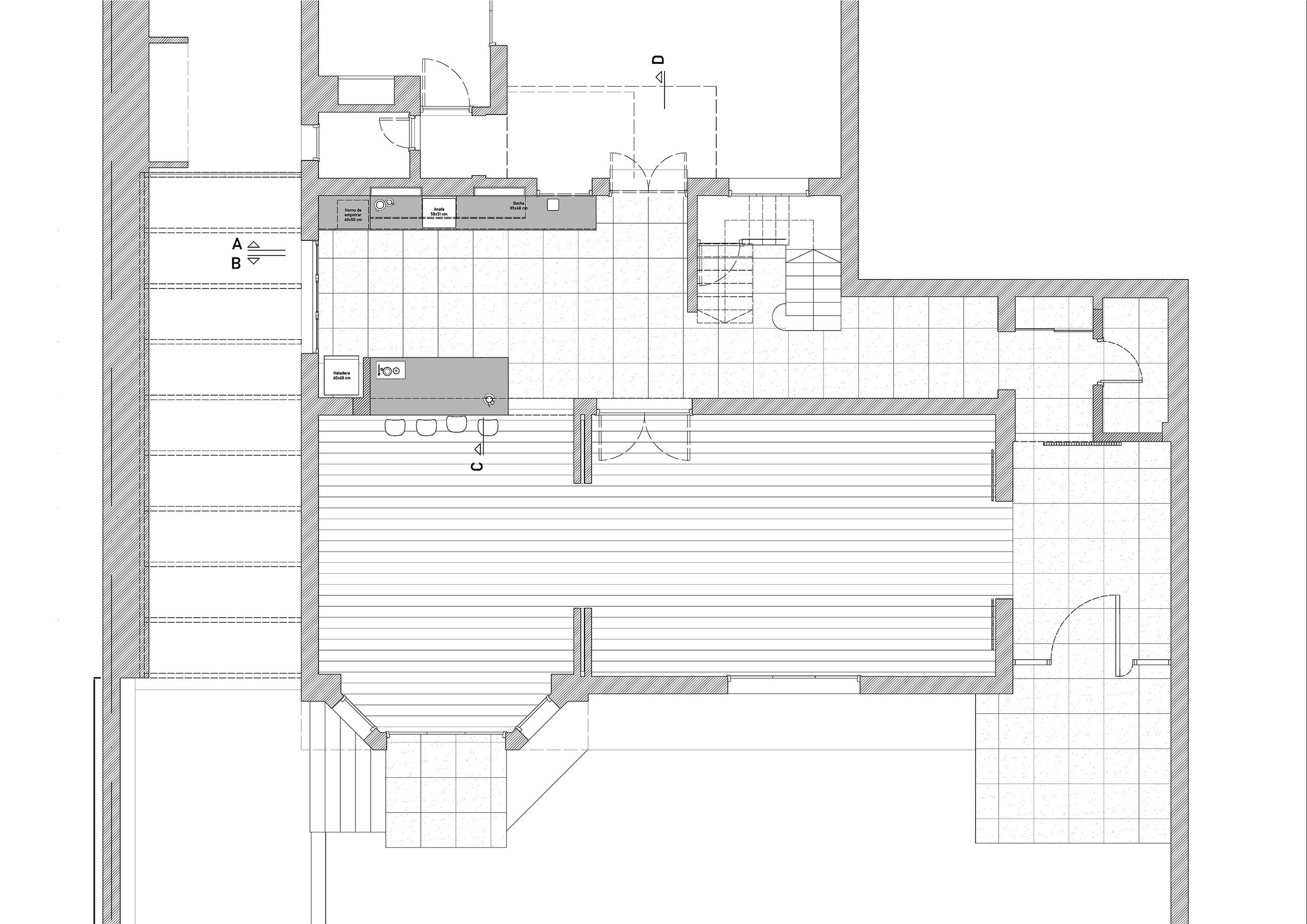
Reorganización espacial

Nueva lógica de circulación en estructura existente

El proyecto surge de la necesidad de modernización del lugar en una casa tipo chalet tradicional para albergar un uso moderno de una familia pero sin afectar el carácter original de su impronta.
Para ello se re funcionalizo el acceso y circuito interno de circulaciones, generando un nuevo acceso con lobby de gran jerarquía y la óperacion total de apertura de los ambientes de la planta baja. En la planta alta se re funcionalizaron baños habitaciones suite y vestidor

Fecha
Categoría
Arquitectura