Laboratorio de soluciones materiales donde la experimentación se vuelve lenguaje de diseño

 

Casa Conesa

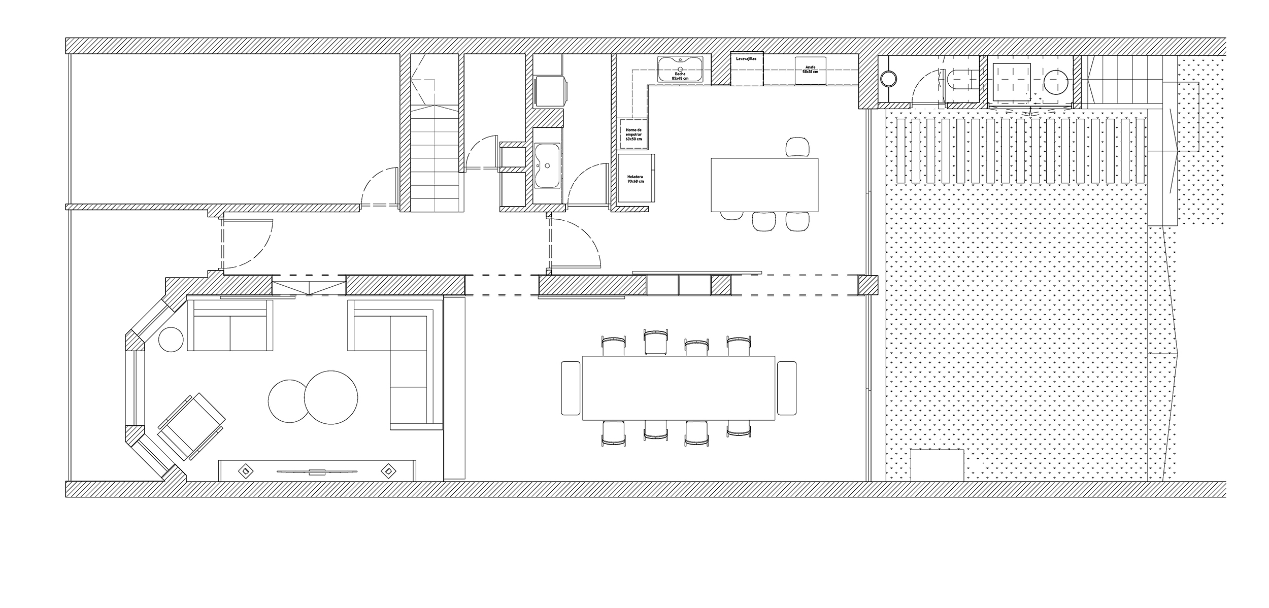
Reconfiguración doméstica

Del compartimento al espacio integrado

Un proyecto unifamiliar que parte desde la revalorización de los espacios comunes y la puesta en escena de una cocina protagónica que estaba escondida en su sitio original, para abrirse al parque y dar jerarquía a la activdad favorita del cliente: cocinar. Con intervenciones de sustracción de gestos propios de los 80’s y una visión unificadora y despojada que permite integrar el jardín y dejar que la luz natural alcance la profundidad de la planta.

Fecha
Categoría
Arquitectura