Laboratorio de soluciones materiales donde la experimentación se vuelve lenguaje de diseño

 

Dock Benavídez

Arquitectura colectiva

Sistema residencial en equilibrio con el entorno

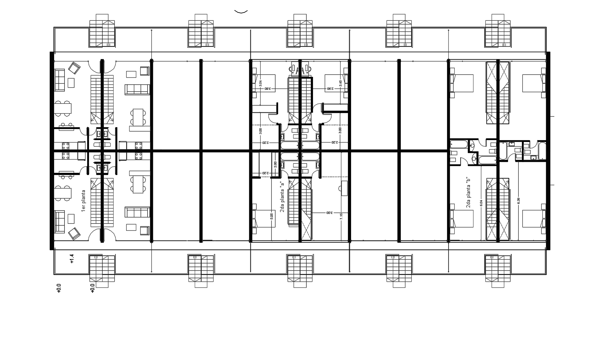
Complejo multi familiar de tipo apaisado, donde se encuentran la eficiencia constructiva con el máximo disfrute posible. Una planta de departamentos de 1 y 2 dormitorios, con terrazas individuales, cochera atrincherada de acceso directo y un sector de amenities que articula el paisaje en un entorno natural urbanizado

Fecha
Categoría
Arquitectura