Laboratorio de soluciones materiales donde la experimentación se vuelve lenguaje de diseño

 

Proyecto Calle Ayacucho

Puesta en valor de espacios existentes

Reconfiguración interior en vivienda habitada

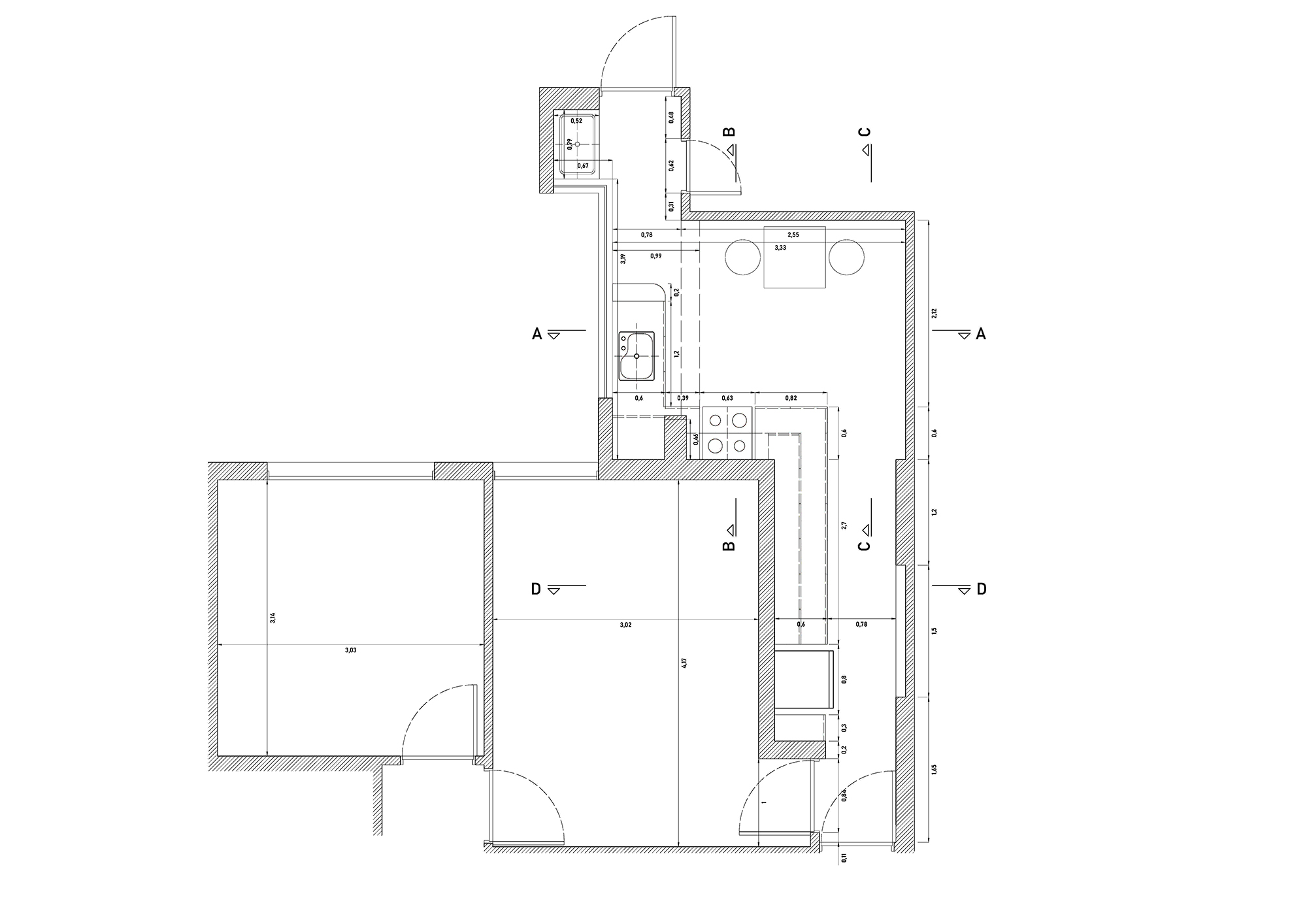
En este proyecto se realizó una intervención integral sobre espacios existentes orientada a optimizar el funcionamiento cotidiano sin alterar la dinámica de uso de la vivienda. El proyecto se desarrolló en una casa habitada, lo que implicó una planificación precisa de tiempos, procesos y decisiones constructivas.

La reforma incluyó la reconfiguración estructural de la cocina, incorporando nuevos sistemas de guardado, superficies de trabajo y una organización espacial más eficiente. Se trabajó sobre una lógica de continuidad material, combinando mobiliario contemporáneo con revestimientos de alto rendimiento.

En paralelo, se realizó la pintura integral de los ambientes y la restauración de pisos existentes de madera, preservando su carácter original mientras se actualiza su condición material. El vestidor fue intervenido mediante una puesta a punto cromática, manteniendo su estructura y reforzando su integración con el resto de la vivienda.

El resultado es una actualización precisa que mejora la calidad espacial, optimiza el uso y revaloriza lo existente desde una lógica técnica y material.

Fecha
Categoría
Arquitectura